Foto leveres af Google Street View og kan være upræcist:
    
Klinik til leje, Østerbro, Bryggervangen 5
Bryggervangen 5, 2100 København Østerbro- Klinik til leje
- 16 - 500 m2
 
            
                Bryggervangen 5, 2100 København Østerbro
                
            - Klinik til leje
- 16 - 500 m2
            Kontakt udlejeren nu
            Du linkes til en anden portal, som evt. kan kræve betaling eller oprettelse
Klinik til leje, Østerbro, Bryggervangen 5
Fakta
- 158949
- Klinik
- 16 - 500 m2
                    KONTAKT UDLEJEREN NU
                    
            
        Du linkes til en anden portal, som evt. kan kræve betaling eller oprettelse
                Momsfrit /klinikfællesskab
            1. maj 2025 åbner vi dørende for endnu et nyt klinikfællesskab for selvstændige behandlere.
Momsfrit - godkendt til ydernummer.
Huset for Sundhed & Balance åbner nu endnu en afdeling på Østerbro, hvor vi har plads til 15 selvstændige behandlere, med hvert deres lokale.
Klinikfællesskab med momsfrie lejemål, som er handicapvenligt og med elevator og gode parkeringsmuligheder.
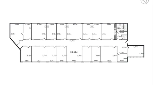
Lokalerne er med vask og måler fra 16 kvm. til 26 kvm.
I vores klinikfællesskab har vi speciallæger, psykologer, fysioterapeuter, vaccinelæger og terapeuter m.m. i huset og vi mener, at jo flere behandler vi er under samme tag jo mere synergi giver det, hvilket kun er til glæde for os alle.
Samtidig tænker vi på miljøet i form af sparet resurser i form af, at vi deler venteværelse, køkken m.m.
Vi glæder os til flere dygtige kollegaer, som kan være med til at skabe en høj faglighed og en god synergieffekt.
Med i prisen får du fælles venterum, handicaptoiletter, the-køkken, trådløst internetforbindelse, vand, varme samt hjemmeside med link til din egen side.
Prisen er fra 8.800,- pr. mdr. incl. strøm, varme, internet, hjemmeside samt rengøring af fællesarealer.
Vi har Metroen Vibenshus Runddel beliggende kun 300 m fra klinikfællesskabet og der ud over, så har vi buslinjer i området.
Fotos er fra vores klinikfællesskab på Vordingborggade og den nye afdeling bliver indrettet på samme måde.
Fremvisning efter aftale via mail jorgenrjeily@gmail.com eller telefon 42422264.
            
        
            Momsfrit - godkendt til ydernummer.
Huset for Sundhed & Balance åbner nu endnu en afdeling på Østerbro, hvor vi har plads til 15 selvstændige behandlere, med hvert deres lokale.
Klinikfællesskab med momsfrie lejemål, som er handicapvenligt og med elevator og gode parkeringsmuligheder.
Lokalerne er med vask og måler fra 16 kvm. til 26 kvm.
I vores klinikfællesskab har vi speciallæger, psykologer, fysioterapeuter, vaccinelæger og terapeuter m.m. i huset og vi mener, at jo flere behandler vi er under samme tag jo mere synergi giver det, hvilket kun er til glæde for os alle.
Samtidig tænker vi på miljøet i form af sparet resurser i form af, at vi deler venteværelse, køkken m.m.
Vi glæder os til flere dygtige kollegaer, som kan være med til at skabe en høj faglighed og en god synergieffekt.
Med i prisen får du fælles venterum, handicaptoiletter, the-køkken, trådløst internetforbindelse, vand, varme samt hjemmeside med link til din egen side.
Prisen er fra 8.800,- pr. mdr. incl. strøm, varme, internet, hjemmeside samt rengøring af fællesarealer.
Vi har Metroen Vibenshus Runddel beliggende kun 300 m fra klinikfællesskabet og der ud over, så har vi buslinjer i området.
Fotos er fra vores klinikfællesskab på Vordingborggade og den nye afdeling bliver indrettet på samme måde.
Fremvisning efter aftale via mail jorgenrjeily@gmail.com eller telefon 42422264.
Information og data
Dette kliniklokale ligger på Bryggervangen på Østerbro. Østerbro har postnummeret 2100, og ligger i kommunen København, som ligger i København. Lokalet er i alt 500 m2.
 
                    
                 
                    
                 
                    
                 
                    
                 
                    
                 
                    
                 
                    
                 
                    
                